フラット型表示灯の非常警報が発売されました【新設・リニューアルに最適な商品】
2020.12.02

この時を待っていました。ついにフラット型の非常警報複合装置が発売されました。非常警報よりも数年先に自動火災報知設備でフラット型の表示灯が発売されていましたが、いよいよ非常警報にフラットLED型が登場することになり早速チェックさせていただきたいと思います。
今まではランプ(非常灯)が少しだけ前にせり出していました。非常警報複合装置は押しボタンを押すと建物に設置しているベル、サイレンが連動し全体で一斉に鳴動する仕組みです。自動火災報知設備と違い、火災感知器の接続をせず、押しボタンとサイレンが一体化している装置となります。
表示灯についての決まりごと

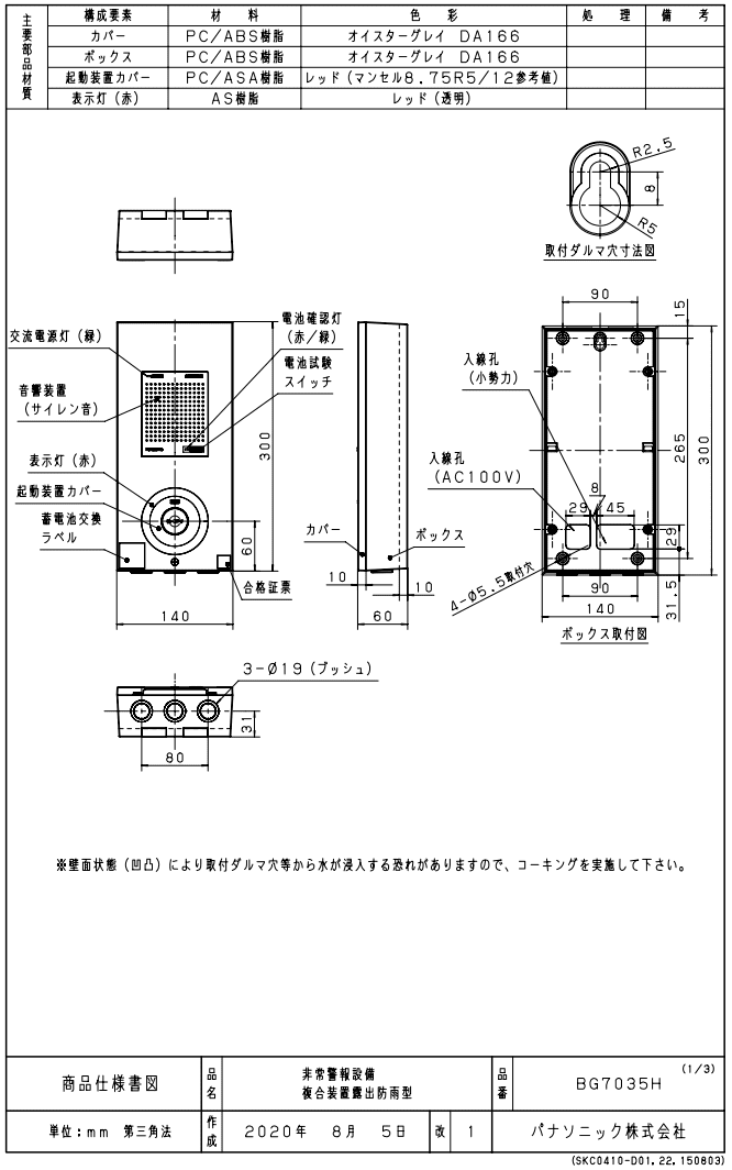
表示灯には決まりがあり、赤色で取り付け面と15°以上のとなる方向に沿って10m離れた場所でも点灯していることが分かる必要があります。
従来はウルトラマンのカラータイマーのようなもので上記の条件を満たしていましたが画期的なアイデアからフラット型の製品が投入されるようになりました。
表示灯はLEDを使用し本体が作動しているときには点滅(フリッカー)する仕組みです。自動火災報知設備の表示灯で点滅している場合は消火栓ポンプが作動しているということを表しますが、今回は非常警報設備なので作動時の点滅と消火栓起動は無関係です。
その他従来製品との違い【音声警報が追加】

フラット型非常警報
従来の製品は押しボタンを押すことでゴングやサイレンの警報音を鳴動させていました。今回の新製品はサイレンが2パターン搭載されています。従来のキンキンしたサイレン音よりもややマイルドな音に仕上げてあります。
また、サイレンに加え音声警報音源も搭載されています。設定でサイレンのみ or サイレン+音声警報モードの選択が可能です。
音声警報は日本語、英語、中国語の3ヶ国語に対応しています。初めにサイレンが鳴ったあとに音声警報を鳴らします。
②サイレン音響 + 【fire・fire】 英語
③サイレン音響 + 【着火了・着火了】 中国語
①②③順番でループします
製品姿図

承認図
リニューアル時のご注意点

リニューアルプレート(旧製品は開口寸法が大きめ)
リニューアルをお考えの場合についての注意事項があります。非常警報複合装置は各種メーカーによって設計寸法や開口寸法が異なるため、メーカー変更が困難になります。今回ご紹介製品へのリニューアルが寸法の違いにより難しい場合があります。
今回ご紹介した製品はPanasonic社の製品ですが、各メーカーから同じような最新機種が出てくることが予想されますので製品動向をチェックしつつリニューアルのタイミングを探ってみてはいかがでしょうか。
リニューアルのご相談などございましたらご連絡お待ちしております。
参考記事:非常警報のリニューアル用のアダプタ
【動画】フラット型表示灯非常警報複合装置
参考:消防法施行令